office

contact

works

o p u s

MUSEUM AND SCIENCE CENTER IN OULU

 

Location: Oulu, Finland

Year: 2023 –

Status: Competition. 1st prize. Ongoing.

Program: Museum, science center

Client: City of Oulu

Area: 9540 m2

 

In collaboration with architect Simon Mahringer.

 

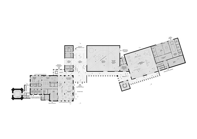
The new building joins an existing historic power station to form a new museum and science center in Myllytulli area in Oulu city center.  The building hosts exhibition spaces for a museum of local history, exhibition spaces for a science center, shared performance and event spaces, a restaurant and workshop and office spaces for the employees as well as for the public. The spaces are distributed within the newly built extension and within the old power station.

 

The driving ambition of the design is to develop and shape meaningful and vibrant urban outdoor spaces through the construction of a new museum complex. The museum center operates as a part of the urban fabric, and does not present itself as an independently standing monument, but as a participant in the shared life of the city. The juxtaposition of the new building volumes takes into account the natural directions from which one approaches the site, the need for extensive parking area serving the building as well as the existing housing blocks surrounding the site. A new, calm and tranquil museum plaza is created where the extension meets the old power station.

 

The extension consists of two enclosed brick volumes, an open circulation loggia connecting them to the existing power station, and a new tower anchoring the point of coordination shift between the volumes. The brick volumes contain  flexible and ever changing exhibition spaces, while the loggia is architecturally more specific and binds the totality together. The existing power station becomes a natural and vital part of the new whole, inhabited by new public functions. The past is not seen as a burden or something to be enclosed within a glass cabinet, but as something to grow from and connect to, thus adding on to the experience of everyday life.